
Flangeform Nuts are threaded fasteners with unique ribs designed for installation into thin gauge materials. The fastener plunges the prepunched hole and wraps itself around the material whilst the ribs embed themselves providing an integral high strength attachment point.
Flangeform Nuts Advantages
- High strength attachment point in thin materials
- Accurate & positive positioning
- High bending moment resistance
- One fastener type per size covering material thickness range
- No weld splatter / fumes – environmentally friendly process
- Provides a flush mounting surface
- Provides exceptional strength from both sides of the mating sheet, unlike traditional clinch fasteners which provide exceptional strength from only one side of the mating sheet
- Can be installed into 2 layers of material
- Ideally suited to multiple insertion and automated assembly in die or off line
Flangeform Nuts Design Guide
Hole Preparation
A pre-punched or drilled hole is required with a tolerance of +/- 0.1mm. Refer to product data sheet for hole sizes.
Sheet Preparation
Flangeform is suited up to 80Rb material hardness.
Sheet Thickness
Refer to the product data sheet for material thickness range.
Installation
Can be used on progression, transfer, off-line mechanical / hydraulic presses using auto-fed or manual technique.
Tooling
Mini-Die (bottom tool) will vary depending upon the material thickness, hole size and hardness.




Technical Data

Flangeform Nuts
MATERIAL CODES
Nuts
Steel BS EN ISO 10263-2.
Finished nuts to conform to BS3692 Grade 8 mechanical properties. Other materials are available.
THREAD
Standard ISO Metric coarse pitch series to ISO 965/BS 3643-6H. Gauge tolerances in accordance with ISO 1502 / BS919 used to determine thread acceptability. After plating, threads must be capable of accepting a Go gauge of basic size. Other thread forms available.
FINISH
Zinc & Clear trivalent passivation as standard, other plating finishes available.
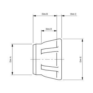
General Dimensions



*Dimension Z2 When nuts are emplaced manually one at a time.
These dimensions relate to when standard mini–dies are used. Mini-dies can be modified & tailored to customer needs to achieve closer A & Z dimensions.
Mini Die Insertion Tool Dimensions
Mini-die tools are specific for each metric / imperial size of Flangeform nut and material thickness. This data is required to choose the correct mini-die for the application.


How to Specify

- Product code – High Torque Spline feature is product code 10, the standard spline feature is product code 20.
- Thread code – Refer to thread code matrix.
- Grade & plating code – Grade 8 is H, 9 is J. Standard plating is Zinc & Clear trivalent passivation (W).
Thread Code Matrix


Performance Data

Note: The data provided above is for general guidance only and may vary depending upon material, hole size, tonnages & tooling. For specific advice and data please contact BAS Components technical centre.


